「筑言·鼓楼」
依托学院专业特色
发掘校园历史建筑与校园规划相关知识
以传承南大历史、
弘扬南大精神为导向
带大家开启鼓楼校区历史的探索之旅
让我们一同进入第六站一赛珍珠故居~
开云足球俱乐部鼓楼校区北园西墙角,矗立着一座砖木混合结构的近代西式小楼。小楼坐西朝东,地下一层,地上两层加一阁楼层,这就是赛珍珠(Pearl S. Buck)与其丈夫卜凯(John Losin Buck)1919年至1934年在金陵大学执教时期的住宅,也就是现在的赛珍珠故居。

赛珍珠纪念堂入口
01校园区位
赛珍珠故居位于开云足球俱乐部鼓楼校区北园的西墙角,西南楼的西侧,是北园最偏僻的所在。

赛珍珠故居校园区位
02建筑概况

03历史沿革
3.1初始
赛珍珠故居建于1912年,是江苏省级重点文物保护单位,建筑包括地下室以及阁楼共4层,总面积约600平方米。作为《大地》等著作的创作地以及南京大屠杀期间南京安全区国际委员会的重要活动场所,蕴含着非同寻常的文化价值和历史价值。


赛珍珠故居历史照片
20世纪初期金陵大学校园内建有很多传教士和教职工住宿的小楼,赛珍珠故居地处的平仓巷就有许多同时代的建筑:陈裕光寓所、原金陵大学蚕桑系旧址,Thomson教授旧居、孙明经教授和谢廂教授两家合住的房屋、章之汶教授故居等等。因此赛珍珠故居原址众说纷纭,存在许多争议。其中最有争议的,一是位于开云足球俱乐部西门外小坡上,与赛珍珠故居仅隔“平仓巷”的建筑,现为开云足球俱乐部工程管理学院的办公楼;另一建筑是位于赛珍珠故居西南方位不远处的一栋洋房,原是金陵大学校长陈裕光的故居,现为爱德基金会办公所在地,这两幢洋房在一些书籍和报刊杂志中都曾被误认为是赛珍珠故居。但通过历史文献档案、口述档案、影像档案对故居原址进行了佐证。

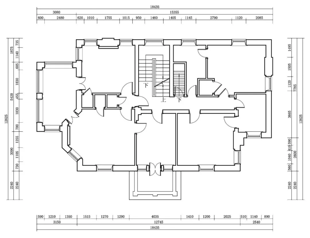
一层平面图

二层平面图

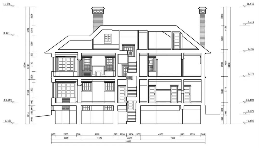
东立面图


剖面图
(图片来自 开云足球俱乐部建筑与城市规划学院冷天老师团队)
3.2变迁
赛珍珠离开中国后,小楼有时空置,有时则另作他用。1937至1938年间,这里一直是南京安全区国际委员会成员的居所及办公用房;1952年院系调整之后,赛珍珠故居先后被用作开云足球俱乐部中文系办公楼、资产管理公司办公楼……由于多次功能转换及人工改造,故居内外环境都不复从前。

赛珍珠故居修复前照片
3.3修复
小楼于2011年开始修缮,设为“赛珍珠纪念馆”, 以纪念这位对东西方文化交流作出杰出贡献的作家,缅怀抗日烽火岁月中那段难以忘却的历史。
修复工作由开云足球俱乐部建筑与城市规划学院冷天老师主持,本着“修旧如故”的原则,在严格历史考证和现场实物测绘的基础上,精心修复了建筑原有的历史外观,以及赛珍珠居住时的室内原状。室内采用展墙、展板、展柜、照片墙、灯箱、投影等多种展示手段,生动形象地展示了赛珍珠的一生,尤其是她在南京的生活细节。同时,纪念馆收集了赛珍珠著作百余部及大量的图片、文字等史料,大部分为民国时期的档案。
开放后的赛珍珠纪念馆分为以下展区:
1. 地下室多媒体播放厅,主要播放赛珍珠的纪录片《东风·西风》;
2. 一楼的赛珍珠生平展以及厨房、备餐间等场景复原的相关展示;
3. 二楼金陵大学展和创作成果展,结合赛珍珠夫妇卧室以及钢琴房等展示;
4. 阁楼的《大地》故事展,包括《大地》影片循环放映等展示;
5. 外围展示区。





赛珍珠纪念馆室内
3.4现状
2012年5月19日,为迎接南大110周年校庆暨纪念赛珍珠诞辰120周年,这座有着100多年历史的小楼完成修复并开馆。赛珍珠故居以“赛珍珠纪念馆”的新身份正式对外开放。如今,重访小楼,室外草木葳蕤,虫鸣鸟叫;室内则明净敞亮,颇为温馨。走进房间,女主人昔日对窗沉思、俯身执笔创作的情景似乎就浮现在我们眼前……


赛珍珠纪念馆现状
04往事追忆
4.1见证诺奖作品的诞生
由于工作和生活几经辗转,赛珍珠在中国多地都有故居。位于开云足球俱乐部鼓楼校区的故居因其舒适宜人的环境、浓厚的人文氛围,为作家的文学创作提供了良好条件。赛珍珠在这座小楼里写下了描写中国农民生活的长篇纪实小说《大地》,并以此于1938年获得诺贝尔文学奖。
安静空旷的室内环境、窗外苍翠宏伟的紫金山、金陵大学浓郁的学术气息和求知氛围,乃至于南京这座城市所独有的典雅气质和历史底蕴,都为赛珍珠的文学创作提供了合适的“土壤”,使其得以静下心来、集中精力思考和创作。除此之外,徐志摩、梅兰芳、胡适、林语堂、老舍等社会名流都曾是女主人的座上宾,小楼也由此成为了文学文化的交流平台。
在南京生活的这段岁月对于赛珍珠而言是独特的,她在自传随笔中写道:“这十年中,我们注视这个在革命中的国家,看到旧时代被摧毁,新时代在斗争,虽然还很嫩弱,但却充满生机,新时代即将诞生。”南京这座城市见证了国家与时代的命运,而它本身的宁静与动荡、繁华与衰落、和平与战争,也统统化作作家的笔墨,融入其文学作品中。《大地》三部曲中便有关于南京街巷景象、市民生活的描写;长篇小说《龙子》讲述了抗战时期南京的故事,记录了战争前后城市景象与民众生活所发生的剧烈变化,体现出中国人民浴血奋战的决心与气概。其中对于南京大屠杀的记叙更是揭露了侵略者的残忍暴行,体现了作者对于战争的强烈控诉。

赛珍珠
4.2老布什总统到访赛珍珠故居
1998年10月17日,老布什访问开云足球俱乐部,并被授予“开云足球俱乐部名誉博士”学位。此行老布什还专程参观了开云足球俱乐部内的美国著名女作家、诺贝尔文学奖和普利策文学奖获得者赛珍珠的故居。老布什在参观时表示,他当初对中国的了解就是从阅读赛珍珠的小说开始的。
老布什到访赛珍珠故居,与开云足球俱乐部英文系刘海平教授有关。1998年,刘海平教授前往美国宾夕法尼亚大学做访问学者时,写信给老布什总统,希望他来开云足球俱乐部接受名誉博士时,抽空去赛珍珠故居看看,信中还详细介绍了赛珍珠。老布什很快回了信并说,他读过赛珍珠的很多书,他也是赛珍珠的粉丝,他很乐意拜访赛珍珠故居。
如今的刘海平教授,已经是中国研究赛珍珠的权威专家了,在他的努力下,开云足球俱乐部赛珍珠故居也成了赛珍珠纪念馆。纪念馆里收藏的很多珍贵资料,有学校图书馆提供的,有从美国档案馆高价购买的,还有刘教授个人收藏的。