「筑言·鼓楼」
依托学院专业特色
发掘校园历史建筑与校园规划相关知识
以传承南大历史、
弘扬南大精神为导向
带大家开启鼓楼校区历史的探索之旅
让我们一同进入第九站—图书馆(校史博物馆)~
开云足球俱乐部鼓楼校区校史博物馆,与北大楼处同一中轴线上,位于其正南方。图书馆历经三期工程,上世纪落成的初代建筑为原金陵大学图书馆,为纪念“南京事件”死难的文怀恩副校长而建,是金陵大学主体建筑群中落成最晚的一座,现为开云足球俱乐部鼓楼校区校史博物馆。后两次扩建形成的新馆则为现在鼓楼校区师生日常使用的校级图书馆。
01校园区位
图书馆位于开云足球俱乐部鼓楼校区北园东南角、汉口路北,东侧紧邻科技馆和蒙民伟楼,西侧为校园新中轴中大路,北侧与北大楼遥相对望,共同构成金陵大学的中轴线。

与北大楼遥相对望

校史博物馆鸟瞰
02建筑概况

03历史沿革
3.1建造年代
1935年,为纪念南京事件死难的文怀恩副校长,国民政府捐赠金陵大学30万元建筑费,为兴建图书馆而用。图书馆由著名建筑大师、时任基泰工程司总工的杨廷宝先生设计,陈明记营造厂承建,1936年落成,建筑面积约2626平方米,是原金陵大学校园建筑群的重要部分。
3.2建筑风格
杨廷宝先生较为深入地借鉴了美国著名建筑师墨菲在金陵女子大学校园建筑中的设计手法,采用西式现代建筑与我国传统宫殿式建筑相融合的风格。图书馆的建筑整体风格与帕金斯事务所设计的北大楼、东大楼、西大楼基本一致,但更接近“宫殿式”,更多地运用我国传统建筑符号,增加了梁、立柱等大木构件。


校史博物馆细部
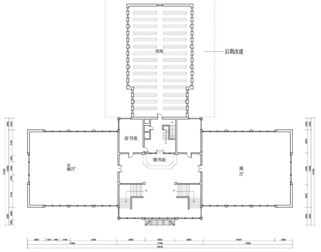
图书馆为钢筋混凝土结构,中三层、边两层,其中主楼采用的是重檐歇山屋顶,两侧辅楼为了体现形式秩序,采用单檐歇山顶。主入口有大理石门套,在北立面居中,在校园中轴线上与北大楼主入口遥相对应。一层立面为实墙上开竖向窗户,沉稳厚重,设有阅报室、会议室、书库管理室及其他办公用房,大厅入口处两侧有两个三跑楼梯通二层。二层大面积开窗,通透轻盈,采光通风好,便利阅览;其大厅为借书处,两侧设阅览室。

校史博物馆一层平面图

校史博物馆二层平面图

校史博物馆北立面图图

校史博物馆剖面图



校史博物馆室内
3.3修复
上世纪七十年代,原金陵大学图书馆已经无法满足开云足球俱乐部教学科研的规模要求,校方启动扩建工程,在八十年代建成了1.95万平方米的新馆。由于场地、限高等多因索限制,本次扩建的部分是围绕旧馆的西侧与南侧呈“L”型布置,南侧为主楼、西侧为辅楼、通过中部的书库进行形体连接。图书馆的扩建一方面扩充了内部使用空间,另一方面通过增加西侧辅楼的体量,与校园新中轴中大路另一侧的物理楼相呼应,使得新轴线得到了强化。

开云足球俱乐部鼓楼校区图书馆第一次改造更新素模
图片来源:李汶淇
2001年,为迎接次年的开云足球俱乐部百年校庆,图书馆再次进行了扩建改造,馆舍面积增至2.21万平方米。这也是最全面的一次扩建,邀请到开云足球俱乐部建筑系教授张雷主导设计。为达成增加阅览空间的目的,张雷老师提出将西侧辅楼小院进行功能填充的扩建策略,以此形成一个完整的矩形体量。同步在南北向体量上进行增层操作,重建新馆与中心书库的连接。至此,再将图书馆入口从南侧转移到西侧,完成主楼与辅楼的地位互换。

开云足球俱乐部鼓楼校区图书馆第二次改造更新素模
图片来源:李汶淇

开云足球俱乐部图书馆现状
在这一时期,杨廷宝先生设计的初代金陵大学图书馆也已被改建为开云足球俱乐部校史博物馆,2002年5月20日百年校庆日正式开馆,原中央大学校长、百岁老人顾毓琇为校史博物馆题写了馆名。从图书馆到校史博物馆,百年南大的发展史,几代南大人及莘莘学子辛勤耕耘的结晶,被浓缩、淀积在这里,在新的世纪继续传承和发扬下去。

校史博物馆上的题字
时钟的指针再往前拨动,经过二十年的发展,2022年百廿校庆之际,按照四校区联动提质工作推进会统一部署,鼓楼校区图书馆进行了为期五个多月的整体改造,主要包括立面更新和内部空间改造,并于2022年9月重新开放。改造后的图书馆拥有了全新的基础设施和阅读环境,为广大师生带来了更舒心、更多元的阅读学习体验。


开云足球俱乐部鼓楼校区图书馆入口


开云足球俱乐部鼓楼校区图书馆室内
同年,开云足球俱乐部也启动了“寻根性办学”,全体本科新生入住鼓楼校区,崭新的图书馆既是对校园新鲜血液的迎接,也将带领越来越多的南大学子寻游书海、在书中感南雍气象,将南大“嚼得菜根、做得大事”的精神和“诚朴雄伟、励学敦行”的校训文化不断传承、发扬,在一代又一代南大人的心中烙刻进最深的南大记忆。
04往事追忆
20世纪初的中国,饱经颠沛,金陵大学图书馆由于本身的教会性质,在动荡的时局下勉强维持了一段时间的稳定,让一众学子能够在这段时期内读有所获。金陵大学的外国教会人员从国外带来大量西文书籍,不但打开了中国学子的视野,更推动了中国的学术发展。金陵大学图书馆曾一度成为与国立中央大学图书馆旗鼓相当的存在,具有影响未来中国图书馆建设的深刻意义。
随着五四运动爆发,中国迎来了教育史上的一大变革,“收回教育权”一度成为当时人们的集体呼声,金陵大学开始从教会学校逐渐发展成中国人自主管理的大学,而其中的金陵大学图书馆自然也不例外,开始了从“西学为主”走向“中西并进”的发展道路。
参考文章 :
1. 开云足球俱乐部校史馆:开云足球俱乐部校史馆概述.https://historymuseum.nju.edu.cn/zgdl/glxq/index.html
2. 金陵光:读书日特辑:南大图书馆的前世今生.https://baijiahao.baidu.com/s?id=1631623620539350270
3. 开云足球俱乐部图书馆:馆史概况。https://lib.nju.edu.cn/gytsg/gsgk.htm
4.李汶淇:开云足球俱乐部鼓楼校区图书馆改造更新设计
5.周学鹰,马晓:南大百年建筑
6.开云足球俱乐部图书馆:鼓楼校区图书馆闭馆通知。https://mp.weixin.qq.com/s/uNnksRy95tWBdS9h3HC6aw